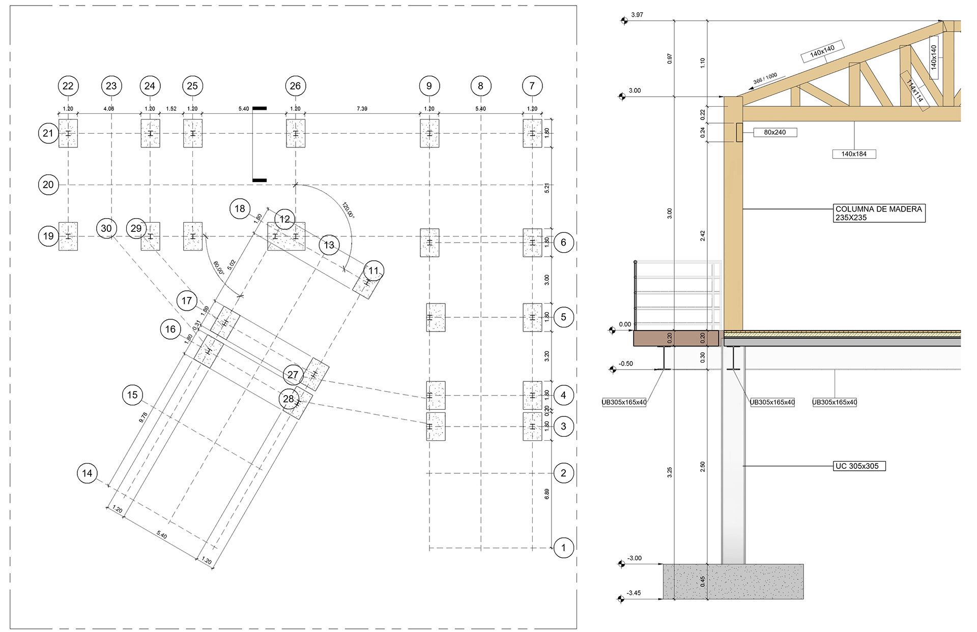
-Vivienda en el Sur Argentino- Esta vivienda, ubicada en un entorno natural del sur argentino, se diseña con una fuerte conexión con el paisaje, integrándose a la topografía mediante una disposición fragmentada y articulada por puentes de vidrio. Su materialidad, basada en acero y vidrio, enfatiza la relación entre el interior y el exterior, permitiendo que la luz y el entorno penetren en los espacios. El uso de volúmenes negros contrasta con la vegetación circundante, otorgando una presencia contemporánea y sofisticada en armonía con la naturaleza.
2024