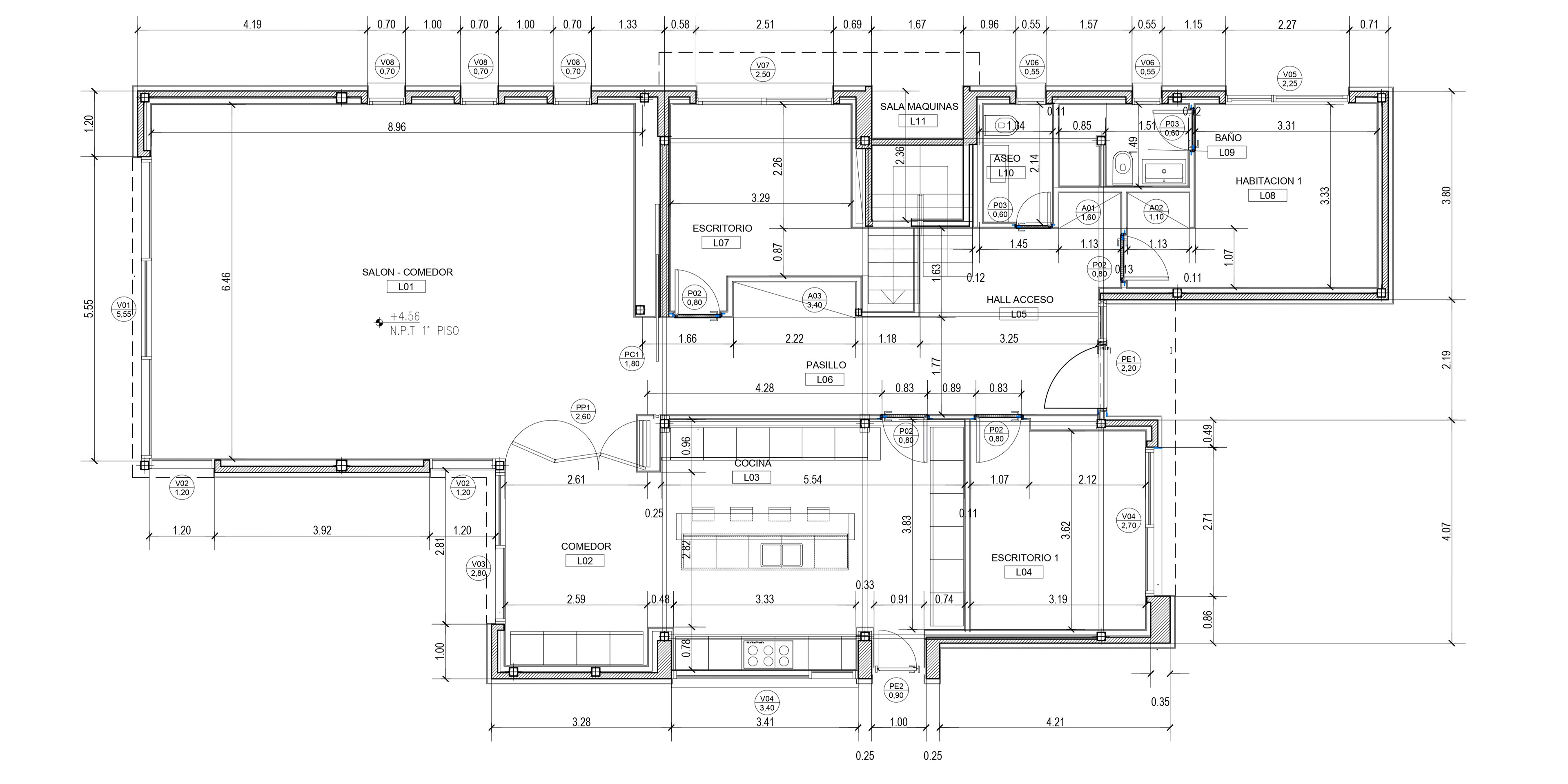
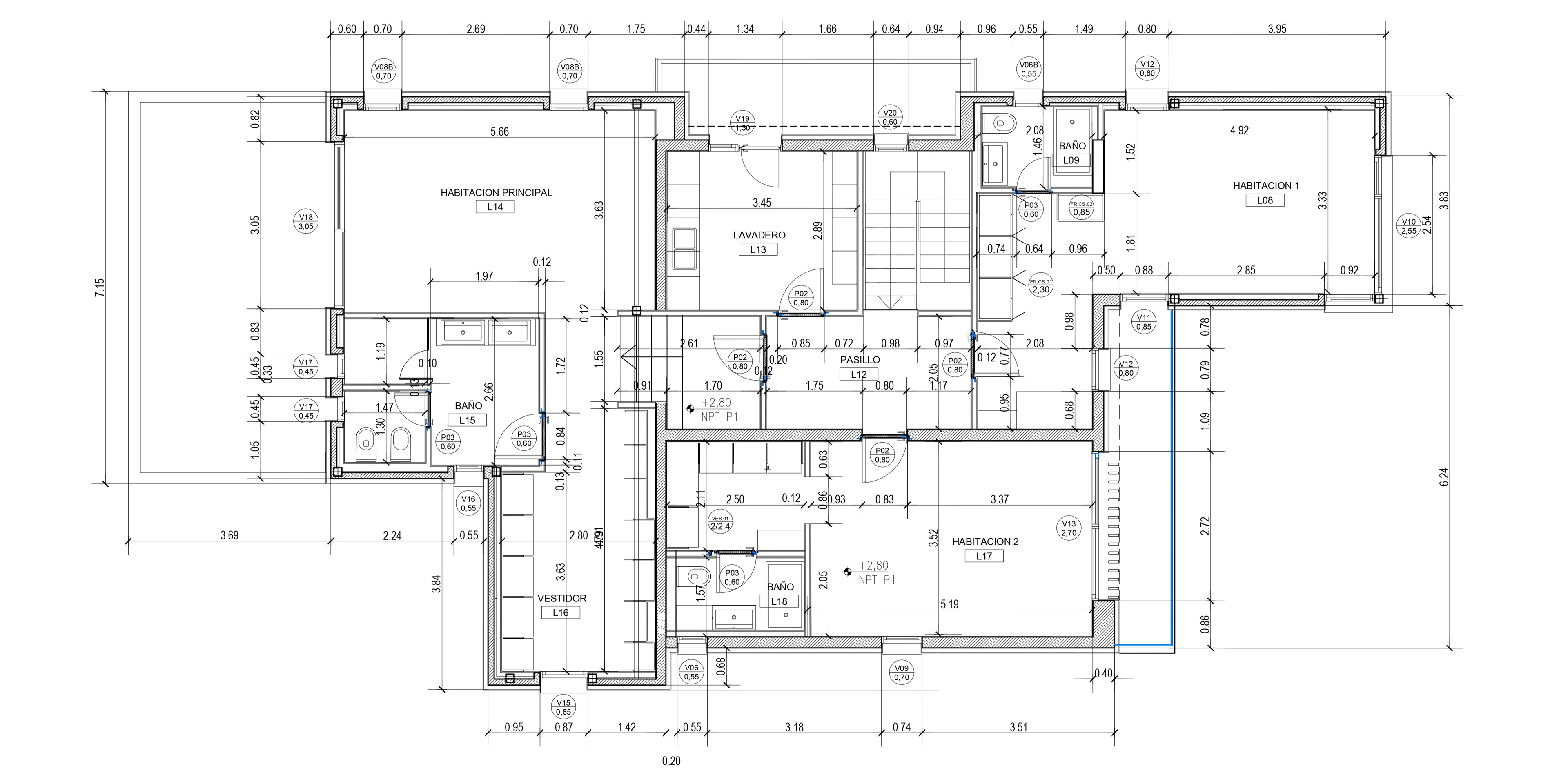
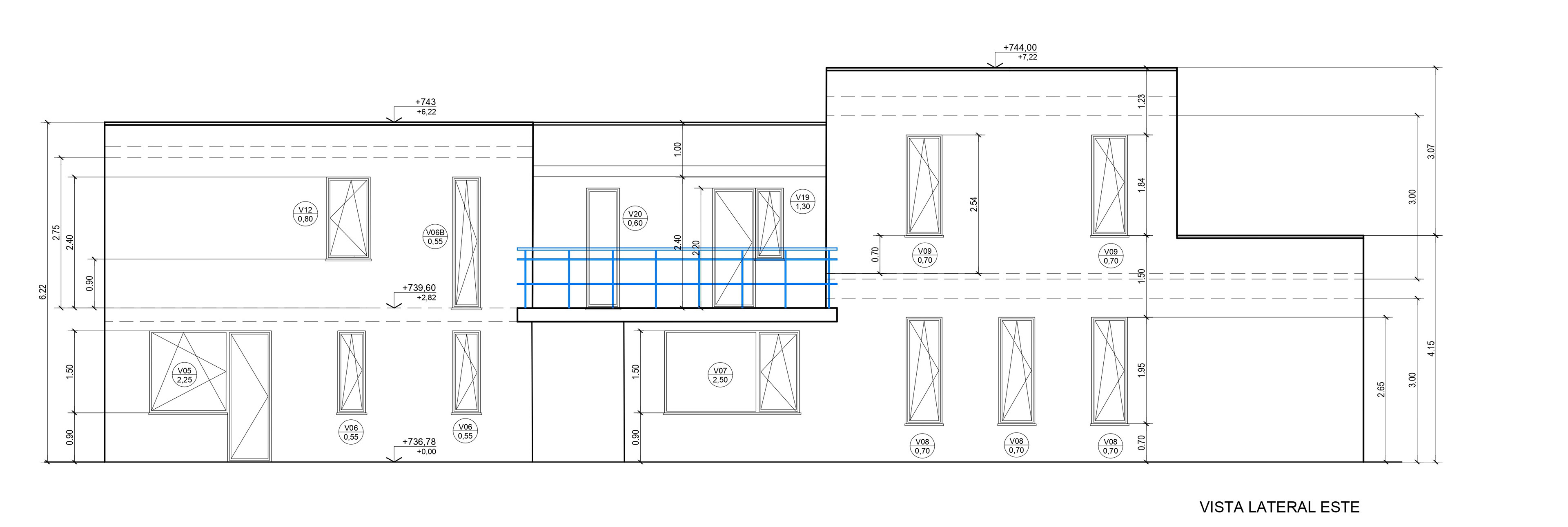
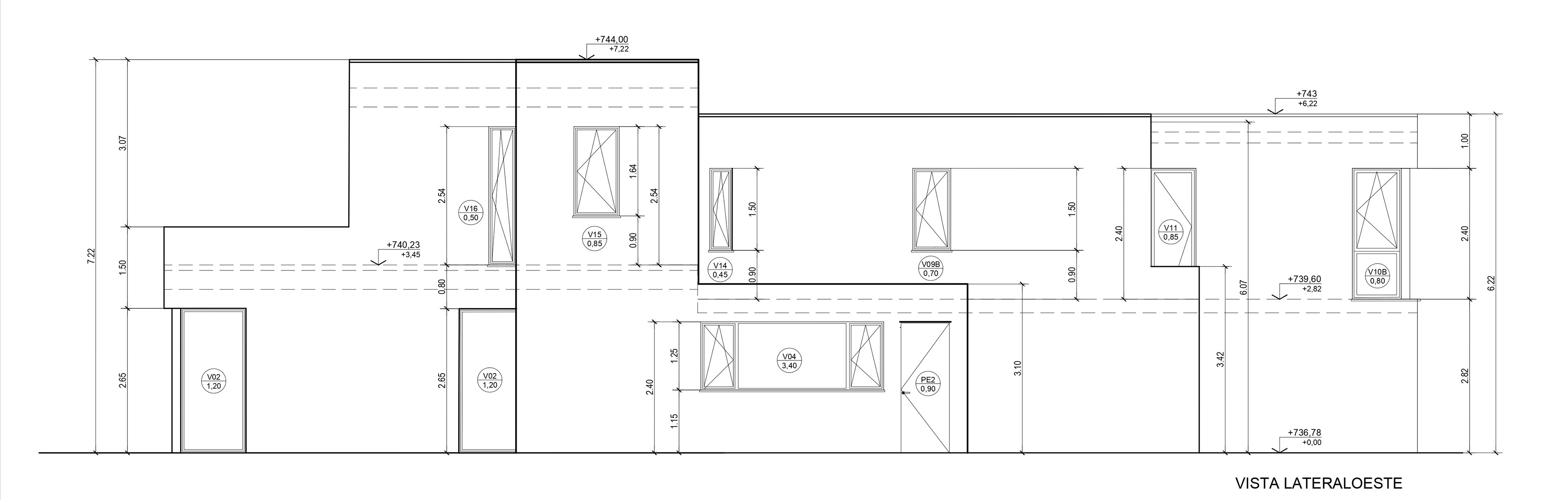
Este proyecto corresponde al desarrollo preliminar de una vivienda unifamiliar realizado para la empresa española de desarrollos inmobiliarios CAPS, ubicada en el barrio de Playa de Llanfranc, en Madrid. El encargo se centró en las primeras etapas de definición del proyecto, orientadas a comenzar a visualizar la vivienda y explorar sus principales decisiones espaciales y constructivas. Dentro de este proceso participé en el desarrollo digital del proyecto mediante la implementación de metodologías de modelado BIM, colaborando en la estructuración del modelo arquitectónico, en la incorporación de estos flujos de trabajo dentro del equipo y en la producción de renders y visualizaciones que permitieran comunicar y evaluar las decisiones de diseño del proyecto.