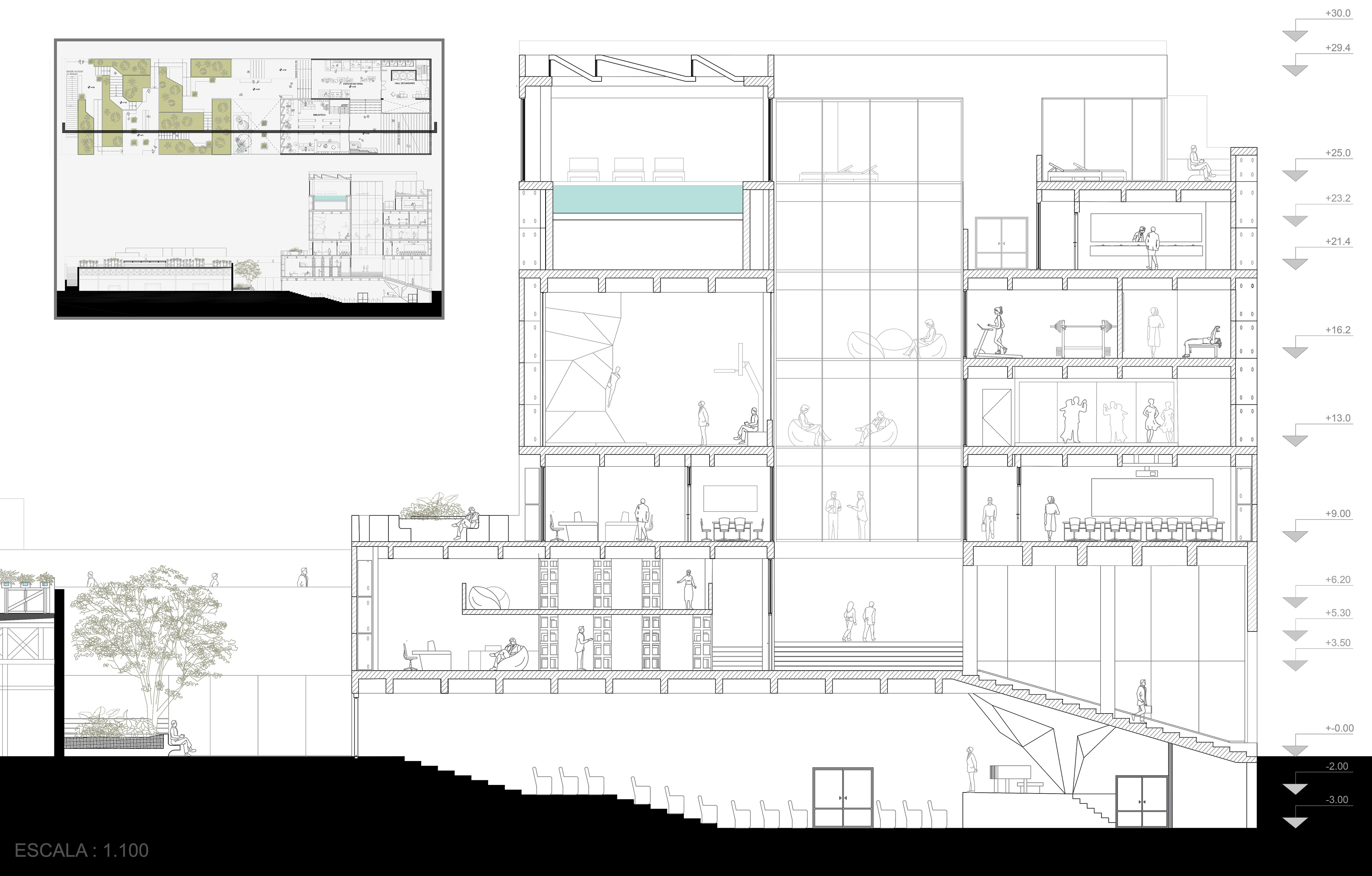
Este proyecto se implanta con firmeza en la manzana urbana, cortándola para generar un pasaje peatonal que articula el tejido de la ciudad. Su exterior opaco dialoga con el entorno consolidado, mientras que en su interior, una serie de vacíos, luces y rampas proponen un recorrido público progresivo y fragmentado. La circulación funciona como eje estructurante: conecta programas abiertos —como salas, talleres y espacios comunes— en una secuencia que se oculta y se revela a lo largo del trayecto. El edificio no se impone por su forma, sino por su capacidad de activar nuevas relaciones espaciales desde la experiencia del desplazamiento.
2024